法拍屋,法拍屋代標,法拍屋出售
桃園廠房,桃園廠房出租,桃園工業地

大園航空城安置住宅三房車-桃園市大園區大樓

安置住宅三房車-街五
列印
  • 售1688萬
    1. 案號:A1400
    2. 類型:大樓_華廈
    3. 總登記坪數:56.27坪
    4. 每坪單價:30萬/坪
    5. 地址:

      桃園市大園區海方路

    1. (煩請告知聯絡人,您是在House-Info房屋網看到廣告,感恩幫忙)
    2. 0932-363-623
    1. 市話:
    2. 公司名稱:
    3. 公司地址:
    4. 個人網站:
    大園航空城安置住宅三房車-QR CODE 留言 檢舉 加LINE好友
物件介紹
詳細資料
最後更新
1天前
銷售狀態
帶看中
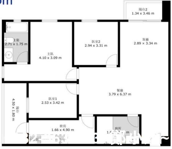
格局
3房,2廳,2衛,2陽台,1廚房
屋齡
1年
車位
坡道式平面車位
無障礙環境
所在樓層
4 / 7樓, 地下2樓
管委會
中庭
電梯
邊間
是否凶宅
不是
坪數說明
建物登記總坪數
56.27 坪
主建物坪數
27.79坪
附屬建物坪數
3.73坪
公共設施坪數
14.29坪
停車位坪數
10.46坪
土地登記總坪數
14.40坪
特色描述
1.管理費尚未訂定。



2.街廓五-邊間。



3.一層六戶,雙電梯。



4.航空城安置住宅

更多物件資訊請洽:



太平洋房屋友成幸福團隊:http://www.59188.com.tw/?s=3Q013



HouseWeb:http://www.0932363623.tw/



HouseInfo房屋資訊網:http://www.桃園房屋土地廠房買賣.tw/



Yse319房屋網:http://www.0932363623.com/



太平洋房屋友成國際加盟店



及成不動產股份有限公司



經紀人:鄭秋月



(104)桃市經字第000881號



電話:0932-363-623



桃園市桃園區國際路一段1059號



桃園房屋土地廠房店面買賣租售歡迎託售太平洋房屋鄭秋月




物件照片
大園大樓-0
大園大樓-0
大園大樓-1
大園大樓-1
大園大樓-2
大園大樓-2
大園大樓-3
大園大樓-3
大園大樓-4
大園大樓-4
大園大樓-5
大園大樓-5
大園大樓-6
大園大樓-6
大園大樓-7
大園大樓-7
大園大樓-8
大園大樓-8
大園大樓-9
大園大樓-9
大園大樓-10
大園大樓-10
大園大樓-11
大園大樓-11
大園大樓-12
大園大樓-12
大園大樓-13
大園大樓-13
贊助商廣告
大桃園廠房,大桃園工業地,大桃園工業地廠房
桃園廠房出租,桃園工業地,桃園廠房工業地
物件留言
請注意,如果您詢問的內容與物件不相符合或是廣告,經過審核,系統將會直接刪除您的發問內容
等待圖示
檢舉不實
等待圖示
黃金曝光
House-Info網站免責聲明:本系統為租用式開放房屋買賣網站建置平台,僅提供會員查詢-大園航空城安置住宅三房車-等房屋資訊參考,並不涉入任何諮詢、交易。 物件(服務)聯絡人公佈的資訊、文字、照片、圖形、產權、廣告內容、或其他資料若有不實或違法情事,或與客戶聯絡交易過程中若衍生民事或刑事等法律問題,皆與本網站無關,所有商標、文章、名稱等版權,皆歸屬原著作者所有!
●電話:07-7963288    ●電子信箱:ogs.chang@gmail.com

House-Info房屋資訊網保留一切權利,非經正式書面同意,禁止轉貼節錄。建議瀏覽解析度1024*768。