房屋,房屋買賣,房屋出售

車城透天車墅3樓-屏東縣車城鄉透天

看海美術館車城國小輕屋齡3樓透天美墅拍
列印
  • 售635萬
    1. 案號:車城海口路
    2. 類型:法拍透天_別墅_一樓
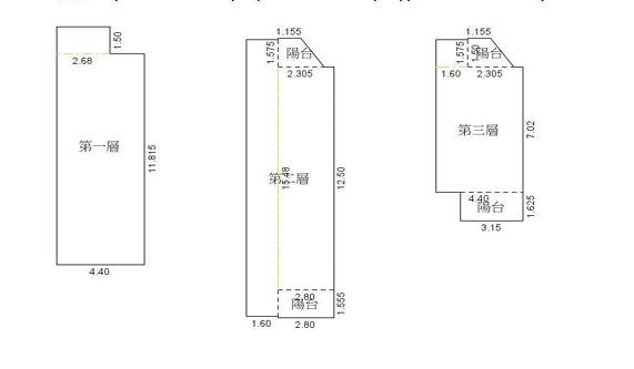
    3. 總登記坪數:49.61坪
    4. 每坪單價:12.8萬/坪
    5. 地址:

      屏東縣車城鄉海口路

    1. (煩請告知聯絡人,您是在House-Info房屋網看到廣告,感恩幫忙)
    2. 0934-087-640
    1. 市話:
    2. 公司名稱:
    3. 公司地址:
    4. 個人網站:
    車城透天車墅3樓-QR CODE 留言 檢舉
物件介紹
詳細資料
最後更新
9小時內
銷售狀態
待標中
格局
4房,2廳,4衛,3陽台,1廚房
屋齡
8年
車位
一樓平面車位
所在樓層
共3樓
電梯
未知
法拍屋
本物件是法拍屋
拍次
四拍
坪數說明
建物登記總坪數
49.61
主建物坪數
49.61
土地登記總坪數
35
特色描述
104法拍屋四大保證:

一、過濾案件︰保證產權清楚,過濾瑕疵案件

二、評估標價︰保證標得到又標得便宜

三、包辦點交︰保證和諧快速交屋附點交保固書

四、代墊尾款︰保證提供尾款代墊

◎沒得標•免付費!!竭‧誠‧為‧您‧服‧務

您所擔心的問題就是我們的專業

專業的問題,就交給專業有信用有口碑的團隊

代標顧問:蘇副理0934087640

目前拍次為四拍635萬(有點交)《請來電洽詢進場拍次‧讓您標得到又標得低!》

Google高雄法拍顧問蘇副理0934087640

更多精選好屋

❤️買房網:買屋網mywoo-蘇秀珠豪宅規格親民價



❤️LINE:https://reurl.cc/28k2L9請點選連結可加LINE好友

❤️FB:https://reurl.cc/qZ1MNE特別徵選低總價物件

❤️樂屋網:vip.rakuya.com.tw/0934087640/sell更多精選物件請點連結

❤️便宜房子何處找?https://shorturl.at/qY5qG



※※法拍有時效性法拍資訊以法院公告為準※※

※※法拍屋不能看內部請來電洽詢詳細地址

物件照片
車城透天法拍-0
車城透天法拍-0
車城透天法拍-1
車城透天法拍-1
車城透天法拍-2
車城透天法拍-2
車城透天法拍-3
車城透天法拍-3
車城透天法拍-4
車城透天法拍-4
車城透天法拍-5
車城透天法拍-5
贊助商廣告
物件留言
請注意,如果您詢問的內容與物件不相符合或是廣告,經過審核,系統將會直接刪除您的發問內容
等待圖示
檢舉不實
等待圖示
相似物件
House-Info網站免責聲明:本系統為租用式開放房屋買賣網站建置平台,僅提供會員查詢-車城透天車墅3樓-等房屋資訊參考,並不涉入任何諮詢、交易。 物件(服務)聯絡人公佈的資訊、文字、照片、圖形、產權、廣告內容、或其他資料若有不實或違法情事,或與客戶聯絡交易過程中若衍生民事或刑事等法律問題,皆與本網站無關,所有商標、文章、名稱等版權,皆歸屬原著作者所有!
●電話:07-7963288    ●電子信箱:ogs.chang@gmail.com

House-Info房屋資訊網保留一切權利,非經正式書面同意,禁止轉貼節錄。建議瀏覽解析度1024*768。