房屋基本資料
案名 國立高雄大學援中國小邊間大地坪透天4樓電梯雙車墅拍3520萬 案號 楠梓大學南路
地址

高雄市楠梓區大學南路

銷售狀態待標中 售價
售3520萬
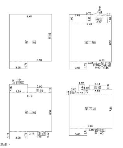
房屋類型法拍透天_別墅_一樓 總登記坪數 147.83 坪
格局 6房,4廳,4衛,3陽台,1廚房 屋齡 15年
每坪單價 23.81萬/坪 公設比
車位 有車位 座向 朝東南
無障礙環境 法拍屋 本物件是法拍屋
拍次 : 三拍
開標日期 : 115/01/13
建物所在樓層 共4樓 管理費
管委會 中庭
電梯 是否為凶宅 不是
300公尺內嫌惡設施 面前道路 21米
面寬 8.78 縱深
邊間 房屋銷售來源 不動產經紀人/專業仲介
房屋特色
104法拍屋四大保證:

一、過濾案件︰保證產權清楚,過濾瑕疵案件

二、評估標價︰保證標得到又標得便宜

三、包辦點交︰保證和諧快速交屋附點交保固書

四、代墊尾款︰保證提供尾款代墊

◎沒得標•免付費!!竭‧誠‧為‧您‧服‧務

您所擔心的問題就是我們的專業

專業的問題,就交給專業有信用有口碑的團隊

代標顧問:蘇副理0934087640

目前拍次為拍萬(有點交)《請來電洽詢進場拍次‧讓您標得到又標得低!》

Google高雄法拍顧問蘇副理0934087640

更多精選好屋

❤️買房網:買屋網mywoo-蘇秀珠豪宅規格親民價



❤️LINE:https://reurl.cc/28k2L9請點選連結可加LINE好友

❤️FB:https://reurl.cc/qZ1MNE特別徵選低總價物件

❤️樂屋網:vip.rakuya.com.tw/0934087640/sell更多精選物件請點連結

❤️便宜房子何處找?https://shorturl.at/qY5qG



※※法拍有時效性法拍資訊以法院公告為準※※

※※法拍屋不能看內部請來電洽詢詳細地址
坪數說明
建物登記總坪數 147.83 土地登記總坪數 70.91
主建物坪數 119.44 停車位坪數
周邊環境
鄰近學區 援中國小,國昌國中 捷運站 油廠國小
房屋聯絡人資訊
聯絡人姓名 蘇副理
(煩請告知聯絡人,您是在House-Info房屋資訊網看到這則廣告,真摯感恩您的幫忙)
手機
0934-087-640
電子信箱 sharonsu815@hotmail.com
所屬公司名稱 一零四高欣仲介經紀有限公司 公司地址 高雄市苓雅區海邊路65號9樓
公司電話 0934087640 公司傳真 一零四高欣仲介經紀有限公司
網 址 http://www.南台灣法拍.tw
贊助商廣告
楠梓法拍透天-1
楠梓法拍透天-1
楠梓法拍透天-2
楠梓法拍透天-2
楠梓法拍透天-3
楠梓法拍透天-3
楠梓法拍透天-4
楠梓法拍透天-4
楠梓法拍透天-5
楠梓法拍透天-5
楠梓法拍透天-6
楠梓法拍透天-6