07-7963288
客服電話
申請房仲網站
|
房屋導覽
|
土地導覽
|
法拍屋導覽
|
法拍地導覽
|
廠房導覽
房屋基本資料
案名
龍騰天璽|高樓兩房|衛浴開窗
案號
地址
高雄市楠梓區楠梓區土庫二路
銷售狀態
帶看中
售價
售776萬
房屋類型
大樓
總登記坪數
24.037 坪
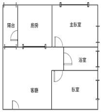
格局
2房
,2廳,1衛,1陽台,1廚房
屋齡
11年
每坪單價
32.28萬/坪
公設比
車位
沒有車位
座向
無障礙環境
有
法拍屋
不是
建物所在樓層
12樓/共20樓
管理費
1322元/月
管委會
有
中庭
有
電梯
有
是否為凶宅
不是
300公尺內嫌惡設施
面前道路
15米
面寬
縱深
邊間
房屋銷售來源
不動產經紀人/專業仲介
房屋特色
★主、次臥室,雙人床皆可放的下
★衛浴開窗、乾濕分離、明亮通風
★2房少有獨立完整廚房空間!媽媽最愛
★生活便利,下樓有2間超商、家樂福、全聯,食衣住行很方便
★公設完善:交誼廳、宴會廳、KTV室、影視廳、健身房、戶外游泳池
★社區旁邊都有車位出租、固定一機車位
------------------------------------------------
龍騰建設/龍騰天璽
總戶數-363戶
土地-持分
第三種住宅區
陽台-1.2坪
雨遮-0.61坪
坪數說明
建物登記總坪數
24.037
土地登記總坪數
2.543
主建物坪數
13.782
停車位坪數
附屬建物坪數
1.821
公共設施坪數
8.434
周邊環境
生活機能
佳
鄰近交通
便捷
鄰近地標
楠梓國中
公園綠地
土庫公園
鄰近學區
楠梓國中
捷運站
青埔
房屋聯絡人資訊
聯絡人姓名
鍾溫雅(阿雅)
(煩請告知聯絡人,您是在House-Info房屋資訊網看到這則廣告,真摯感恩您的幫忙)
手機
0935-311-298
電子信箱
myhome188@yahoo.com.tw
Skype通話
Line加入好友
所屬公司名稱
永義房屋 高雄美術擁樂加盟店
公司地址
高雄市鼓山區美術東二路530號
公司電話
07-3150808 或0935-311-298
公司傳真
網 址
http://www.168吉屋.tw
贊助商廣告
高雄大樓-1
高雄大樓-2
高雄大樓-3
高雄大樓-4
高雄大樓-5
高雄大樓-6
高雄大樓-7
高雄大樓-8
高雄大樓-9
高雄大樓-10
高雄大樓-11
高雄大樓-12
高雄大樓-13
高雄大樓-14
高雄大樓-15
到Google查看地圖
到Google查看街景