透明房訊,台北104法拍,台北法拍屋
法拍屋,法拍屋代標,法拍屋出售
最後更新:3小時內
房屋基本資料
案名 附車位【天闊】環河路40號6樓-1 案號 114快57796
地址

新北市新店區環河路40號6樓-1

社區/大樓天闊(三盟建設)
銷售狀態待標中 售價
售3676萬
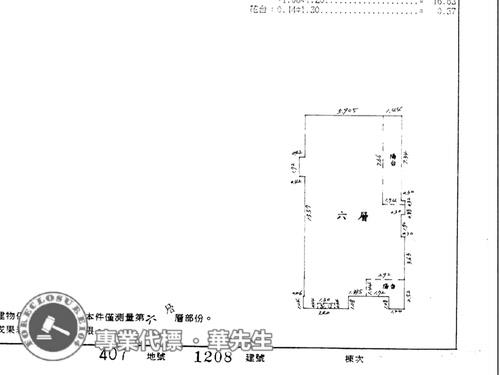
房屋類型 大樓 總登記坪數 51.86 坪
格局 屋齡 27年
每坪單價 70.88萬/坪 公設比
車位 機械車位 座向 朝東
無障礙環境 法拍屋 本物件是法拍屋
拍次 : 1
開標日期 : 115/5/11
建物所在樓層 6/34 管理費
管委會 中庭
電梯 是否為凶宅
300公尺內嫌惡設施 面前道路
面寬 縱深
邊間 房屋銷售來源 不動產經紀人/專業仲介
坪數說明
建物登記總坪數 土地登記總坪數 3.58
主建物坪數 31.59 停車位坪數 4.61
附屬建物坪數 5.2 公共設施坪數 10.46
增建坪數
周邊環境
生活機能 鄰近交通
鄰近地標 公園綠地
鄰近學區 捷運站
房屋聯絡人資訊
聯絡人姓名 經理:華國峰 / 特助:李佩玟
(煩請告知聯絡人,您是在House-Info房屋資訊網看到這則廣告,真摯感恩您的幫忙)
手機
0916-000-104
電子信箱 foreclosure104@yahoo.com
Line加入好友 Line加入好友
所屬公司名稱 透明房訊 ,104法拍網(股) 公司地址 新北市土城區金城路二段396號11樓 / 桃園市桃園區莊敬路一段346號4樓
公司電話 (02)8262-5555 / (03)337-5555 公司傳真 買賣一下子、服務一輩子
網 址 http://www.104法拍屋.tw
桃園廠房,桃園廠房出租,桃園廠房出售
新北法拍屋,新北市法拍屋,新北法院法拍屋
新店法拍大樓-1
新店法拍大樓-1
新店法拍大樓-2
新店法拍大樓-2
新店法拍大樓-3
新店法拍大樓-3
新店法拍大樓-4
新店法拍大樓-4
新店法拍大樓-5
新店法拍大樓-5
新店法拍大樓-6
新店法拍大樓-6
新店法拍大樓-7
新店法拍大樓-7
新店法拍大樓-8
新店法拍大樓-8
新店法拍大樓-9
新店法拍大樓-9
新店法拍大樓-10
新店法拍大樓-10
新店法拍大樓-11
新店法拍大樓-11
新店法拍大樓-12
新店法拍大樓-12
新店法拍大樓-13
新店法拍大樓-13
新店法拍大樓-14
新店法拍大樓-14
新店法拍大樓-15
新店法拍大樓-15
觀看地圖
  • **
    **
    **
    **
    **
House-Info網站免責聲明:本系統為租用式開放房屋買賣網站建置平台,僅提供會員查詢-附車位天闊環河路40號6樓1-等房屋資訊參考,並不涉入任何諮詢、交易。 物件(服務)聯絡人公佈的資訊、文字、照片、圖形、產權、廣告內容、或其他資料若有不實或違法情事,或與客戶聯絡交易過程中若衍生民事或刑事等法律問題,皆與本網站無關,所有商標、文章、名稱等版權,皆歸屬原著作者所有!
●電話:07-7963288    ●電子信箱:ogs.chang@gmail.com

House-Info房屋資訊網保留一切權利,非經正式書面同意,禁止轉貼節錄。建議瀏覽解析度1024*768。