透明房訊,台北104法拍,台北法拍屋
法拍屋,法拍屋代標,法拍屋出售
最後更新:14小時內
房屋基本資料
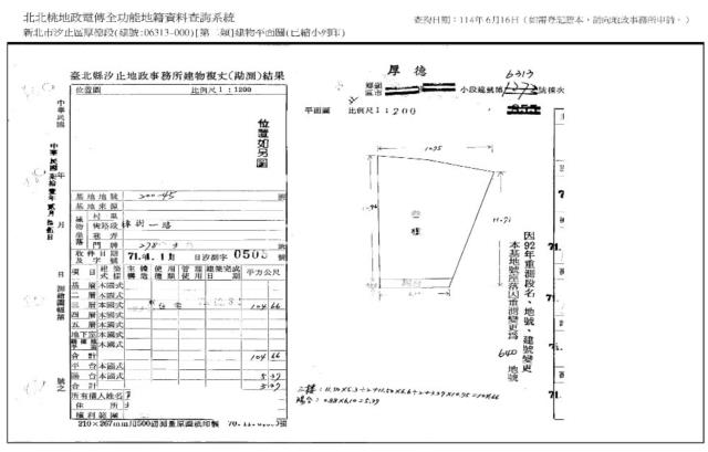
案名 新北市汐止區樟樹一路93號3樓 案號 114職一95金
地址

新北市汐止區樟樹一路93號3樓

銷售狀態待標中 售價
售1220萬
房屋類型 公寓 總登記坪數 33.28 坪
格局 0房 屋齡 45年
每坪單價 36.66萬/坪 公設比
車位 座向
無障礙環境 法拍屋 本物件是法拍屋
拍次 : 1
開標日期 : 115/05/13(三) 上午10:30
建物所在樓層 3樓/共5樓 管理費
管委會 中庭
電梯 未知 是否為凶宅 不是
300公尺內嫌惡設施 面前道路
面寬 縱深
邊間 房屋銷售來源 不動產經紀人/專業仲介
坪數說明
建物登記總坪數 33.28 土地登記總坪數 9.96
主建物坪數 33.28 停車位坪數
附屬建物坪數 公共設施坪數
增建坪數
周邊環境
生活機能 鄰近交通
鄰近地標 公園綠地
鄰近學區 捷運站
房屋聯絡人資訊
聯絡人姓名 TORO 黃瑋諭
(煩請告知聯絡人,您是在House-Info房屋資訊網看到這則廣告,真摯感恩您的幫忙)
手機
0980-758-080
電子信箱 taiwan10201984@hotmail.com
Line加入好友 Line加入好友
所屬公司名稱 鑫創資產管理有限公司 公司地址 新北市新莊區中環路二段423號1樓
公司電話 0980758080 公司傳真 鑫創資產管理有限公司
網 址 http://www.toro591.tw
桃園廠房,桃園廠房出租,桃園廠房出售
新北法拍屋,新北市法拍屋,新北法院法拍屋
新北公寓法拍-1
新北公寓法拍-1
新北公寓法拍-2
新北公寓法拍-2
新北公寓法拍-3
新北公寓法拍-3
新北公寓法拍-4
新北公寓法拍-4
新北公寓法拍-5
新北公寓法拍-5
新北公寓法拍-6
新北公寓法拍-6
新北公寓法拍-7
新北公寓法拍-7
新北公寓法拍-8
新北公寓法拍-8
觀看地圖
  • **
    **
    **
    **
    **
House-Info網站免責聲明:本系統為租用式開放房屋買賣網站建置平台,僅提供會員查詢-新北市汐止區樟樹一路93號3樓-等房屋資訊參考,並不涉入任何諮詢、交易。 物件(服務)聯絡人公佈的資訊、文字、照片、圖形、產權、廣告內容、或其他資料若有不實或違法情事,或與客戶聯絡交易過程中若衍生民事或刑事等法律問題,皆與本網站無關,所有商標、文章、名稱等版權,皆歸屬原著作者所有!
●電話:07-7963288    ●電子信箱:ogs.chang@gmail.com

House-Info房屋資訊網保留一切權利,非經正式書面同意,禁止轉貼節錄。建議瀏覽解析度1024*768。